Стекло двери, стеклоподъемник и электродвигатель стеклоподъемника Mitsubishi Pajero
- Руководства по ремонту
- Руководство по ремонту Митсубиси Паджеро 1982-1998 г.в.
- Стекло двери, стеклоподъемник и электродвигатель стеклоподъемника
12.29.1 Стекло двери, стеклоподъемник и электродвигатель стеклоподъемника
Стеклоподьемник передней двери (1983-91) 1. Внутренняя панель и водозащитный экран 2, 3. Уплотнители 4. Предохранитель 5. Форточка 6. Держатель 7. Подкладка 8. Стекло 9. Стеклоподъемник Стекло задней двери (1983-91) 1. Внутренняя панель и водозащитный экран 2, 3…
12.29.2 Автомобили 1992-98 гг.
Стекло предней (вверху) и задней двери (1992-98) (на вставке – места смазки) 1. Центальная направляющая 2. Стекло 3. Держатель 4. Уголок 5. Уплотнитель 6. Стеклоподъемник (слева – баз электропривода, справа – с электроприводом) ПЕРЕДНЯЯ ДВЕРЬ ПОРЯДОК ВЫПОЛНЕНИЯ 1.
С…
↓ Комментарии ↓
1. Митсубиши Паджеро
1.0 Mitsubishi Pajero
1.2 Внутренняя отделка
1.3. Дверные замки
1.4 Наливная горловина топливного бака
1.5 Капот
1.6. Окна
1.7. Люк
1.8. Сиденья и ремни безопасности
1.9. Воздушная подушка безопасности
1.10. Приборы и органы управления
1.11. Запуск двигателя и управление автомобилем
1.12. Замок зажигания
1.13 Противоугонная система
1.14 Замок рулевой колонки
1.15 Запуск двигателя в холодную погоду
1.16. Автоматическая коробка передач
1.17. Механическая коробка передач
1.18 Стояночный тормоз
1.19 Педаль тормоза
1.20 Система гидроусилителя тормозов
1.21 Звуковой сигнал, предупреждающий об износе тормозных колодок
1.22 Система антиблокировки тормозов
1.23 Рычаг регулировки высоты рулевой колонки
1.24 Система рулевого управления с гидравлическим усилением
1.25 Зеркала заднего вида
1.26 Обогреватели зеркал заднего вида
1.27 Система круиз-контроля
1.
2. Техническое обслуживание
2.0 Техническое обслуживание
2.2 Заправочные емкости
2.3 Замена фильтра
2.4 Топливный фильтр
2.5 Золотник вентиляции картера (бензиновые двигатели)
2.6 Уход за батареей
2.7 Ремни привода
2.8 Шланги системы охлаждения
2.9 Чехлы ШРУСов
2.10 Обслуживание кондиционера
2.11 Щетки стеклоочистителя
2.12 Колеса и шины
2.13 Рекомендуемые топливо, жидкости и смазочные материалы
2.14. Двигатель
2.15. Охлаждающая жидкость
3. Двигатели
3.
0 Двигатели
3.1 Свечи
3.2 Проверка проводов
3.3. Система зажигания
3.4. Капитальный ремонт двигателя
3.5. Дизельный и турбодизельный двигатели 2,5 и 2,8 л
4. Система охлаждения
4.0 Система охлаждения
4.2 Электровентилятор
4.3 Замена охлаждающей жидкости
4.4 Водяной насос
5. Система смазки
5.0 Система смазки
5.2 Проверка термостата масляного насоса
6. Система питания
6.0 Система питания
6.2 Удаление воздуха из системы питания
6.3 Удаление воды из топливного фильтра
6.4 Замена фильтрующего элемента топливного фильтра
6.5 Снятие и установка ТНВД
6.6 Регулировка холостого хода
6.7 Проверка системы предпускового подогрева двигателя 4D56Т
6.8 Проверка блока управления предпусковым подогревом
6.9 Проверка реле включения пусковых свечей
6.10 Снятие и установка турбокомпрессора
6.11 Проверка давления наддува
6.12 Воздухо-воздушный охладитель
7. Система выпуска
7.0 Система выпуска
7.2 Система снижения токсичности
8.
Топливная система
8.0 Топливная система
8.1. Карбюратор
8.2. Двигатели с впрыском топлива
8.3. Дизельные двигатели
9. Ходовая часть
9.0 Ходовая часть
9.1. Механизм управления КПП
9.2. Сцепление
9.3. Автоматическая трансмиссия
9.4. Задний мост
10. Подвеска и рулевое управление
10.0 Подвеска и рулевое управление
10.2. Передняя подвеска
10.3. Задняя подвеска
10.4. Рулевое управление
11. Тормозная система
11.0 Тормозная система
11.2 Вакуумный усилитель тормозов
11.3 Регулировка тормозов
11.4 Выключатель сигнала торможения
11.5 Снятие и установка педали
11.6 Главный цилиндр тормозов
11.7 Дозирующий клапан
11.8 Регулятор давления задних тормозов (1992-98)
11.9 Контрольный клапан усилителя тормозов
11.10 Шланги и трубки
11.11 Удаление воздуха из гидропривода тормозов
11.12. Передние дисковые тормоза
11.13. Задние барабанные тормоза
11.14. Задние дисковые тормоза (1992-98)
11.15. Ручной тормоз
11.16 Антиблокировочная система (ABS)
11.
12. Кузов
12.0 Кузов
12.2 Виниловая отделка
12.3 Обивка и коврики
12.4 Ремонт небольших царапин
12.5 Ремонт вмятин
12.6 Починка отверстий от ржавчины или вмятин
12.7 Наполнение и покраска
12.8 Ремонт значительных повреждений
12.9 Петли и замки
12.10 Ветровое стекло и неподвижные стекла
12.11 Снятие и установка дверей
12.12 Регулировка двери
12.13 Снятие и установка капота
12.14 Регулировка капота
12.15 Крышка заднего отсека
12.16 Бамперы
12.17 Передняя облицовочная решетка
12.18 Наружные зеркала
12.19 Передняя антенна
12.20 Снятие и установка крыла
12.21 Опоры кузова (крепление к шасси)
12.22 Люк
12.23 Держатель запасного колеса
12.24. Оборудование салона
12.25 Внутренние панели дверей
12.26 Облицовочные панели салона
12.27 Обивка потолка
12.28 Выключатель дверного замка
12.29. Стекло двери, стеклоподъемник и электродвигатель стеклоподъемника
12.30 Ветровое стекло
12.31 Заднее стекло
12.32 Внутрисалонное зеркало заднего вида
12.
13. Электрооборудование
13.0 Электрооборудование
13.1 Обнаружение неисправностей в системе электрооборудования
13.2 Проверка напряжения
13.3 Обнаружение короткого замыкания
13.4 Проверка надежности заземления
13.5 Проверка целостности цепи
13.6 Нахождение незамкнутой цепи
13.7 Предохранители
13.8 Пережигаемые перемычки
13.9 Автоматические выключатели
13.10 Система безопасности SRS (подушки безопасности)
13.11. Отопитель
13.12. Кондиционер
13.13. Круиз-контроль
13.14. Аудиосистема
13.15. Очистители стекол
13.16. Приборы и переключатели
13.17. Приборы освещения
13.18. Защитные устройства электрических цепей
14. Электросхемы
14.0 Электросхемы
14.2 Электрооборудование кузова (1983-1986 гг., 1,6)
14.3 Электрооборудование двигателя (1984-1986 гг.)
14.4 Электрооборудование двигателя (1987-1988 гг.)
14.5 Электрооборудование кузова (1983-1987 гг.)
14.6 Электрооборудование двигателя 2,6 л (1989-1990 гг.)
14.7 Электрооборудование кузова (1988 г.
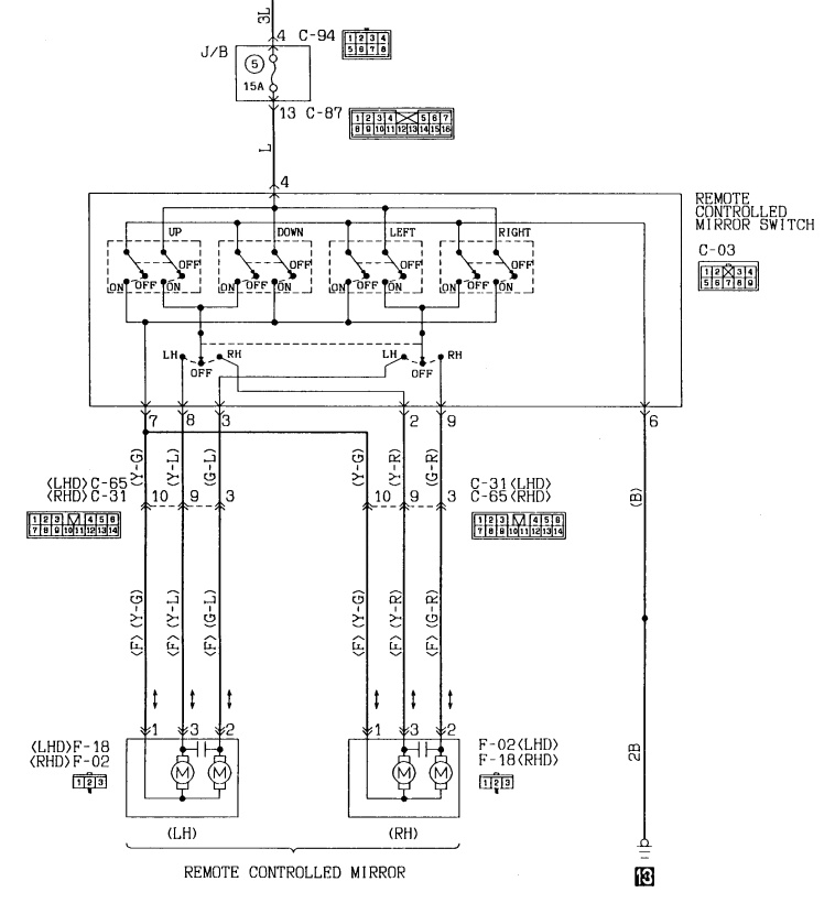
Mitsubishi Pajero | Стеклоподъемники с электроприводом
Стеклоподъемники с электроприводом
Режим функционирования стеклоподъемников определяется не только выключателями, но и блоком управления стеклоподъемниками на опоре с дополнительными реле слева под приборной доской.
При этом движение стекла останавливается, если
коротко нажать клавишу в противоположном направлении.
Из соображений безопасности такой комфортный способ включения в задних дверях существует только для спуска стекла.
При выключенном зажигании при нажатии на кнопку все стекла двигаются до упора только вниз. Стекло движется вверх только в том случае, если нажимается клавиша стеклоподъемника.
Защита детей: стеклоподъемники с электроприводом в задних дверях блокируются центральным выключателем в подлокотнике двери водителя.
Противоугонное устройство:
если при выключенном двигателе дверь водителя открывается и снова закрывается, все стеклоподъемники отключаются.Комфортабельное закрытие:
во всех автомобилях, где есть стеклоподъемники
с электроприводом, они могут одновременно закрываться при закрытии двери водителя
и двери пассажира рядом с водителем.
Для этого нужно чуть дольше подержать ключ
в положении «закрыто». При наличии раздвижной крыши с электроприводом она тоже
при этом закрывается.
Защита при заклинивании: Если при подъеме вверх стекло наталкивается на препятствие, то оно сразу начинает движение в обратном направлении и опускается на несколько сантиметров.
Неисправности
|
Таблица измерительных величин стеклоподъемников
В таблице приведены номинальные величины на примере стеклоподъемника двери водителя (автомобили с четырьмя стеклоподъемниками).
На задних стеклах и в автомобилях с двумя стеклоподъемниками частично проложены провода других цветов (см. сноски).
|
Клемма |
Цвет провода |
Измерение относительно |
Условие |
Номинальная величина |
Измеряется |
|
1 |
Красный/серый |
«массы» |
«Зажигание вкл. » или дверь не закрыта после последнего раза, когда «Зажигание
вкл.»
|
Ок. 12 В |
Напряжение от блока уп- равления |
|
2 |
Белый/желтый |
массы |
нет |
Ок. 12 В |
Напряжение сигнала «Центральное закрытие» |
|
2 |
Белый/желтый |
массы |
Удерживание ключа в замке двери в положении «Закрыто» |
Ок. 12 В |
Напряжение сигнала «Центральное закрытие» |
|
3 |
Желтый/синий 1) |
массы |
«Зажигание вкл.» или дверь не закрыта после последнего раза, когда «Зажигание
вкл. »
|
Ок. 12 В |
Сигнал переключения «Окно открыто» |
|
4 |
Черный/желтый 2) |
массы |
«Зажигание вкл.» или дверь не закрыта после последнего раза, когда «Зажигание вкл.» |
Ок. 12 В |
Сигнал о переключении «Окно закрыто» |
|
5 |
Черный |
массы |
«Зажигание вкл.» |
Ок. 12 В |
Напряжение от замка зажигания |
|
6 |
Коричневый |
«+» |
нет |
Ок. 12 В |
Подключение к массе |
|
7 |
Красный/зеленый |
массы |
нет |
Ок. |
Постоянно ± |
1)
или зеленый/желтый, или белый/черный
2)
или черный/красный, или белый/черный, или белый/лиловый
Временная помощь в дороге
Для стеклоподъемников с электроприводом не предусмотрено какое-либо механическое аварийное управление. Но если стеклоподъемники не работают, то вам не нужно ехать с открытым окном:
|
Замена двигателя стекло-подъемника
Двигатели стеклоподъемников демонтируются так же, как механические подъемники (глава Детали кузова). В монтаже двигателя стеклоподъемника важно программирование упоров:
|
|
Двигатель (1) стеклоподъемника с электроприводом с отсоединенным разъемом (2) и тремя крепежными винтами (3–5). |
|
Здесь снят разъем (2) двигателя (1) стеклоподъемника
для того, чтобы провести проверку с помощью вольтметра и контрольного
провода (3), правильные ли сигналы
|
Стеклоподъемник Mitsubishi Montero | Предварительные автозапчасти
Какой тип транспортного средства?Выберите год Выберите Год202420232022202120202019201820172016201520142013201220112010200920082007200620052004200320022001200019991998199719961995 199419931992199119901989198819871986198519841983198219811980197919781977197619751974197319721971197019691968196719661965196 41963196219611960195919581957195619551954195319521951195019491948194719461945194419431942
Выберите Марку
Выберите MakeAbarthACAcuraAdvance MixerAlfa RomeoAllardAllstateAlpineAlvisAM GeneralAMCAmerican LaFranceAmphicarApolloArmstrong-SiddeleyArnolt-BristolArnolt-MGAston MartinAudiAustinОстин ХилиAutocarAvantiBentleyBeringBerkeleyBertoneBizzarriniBlue BirdBMWBondBorgwardBricklinBristolBugattiBuickCadilla cCapacity Of TexasCaterpillarCheckerChevroletChryslerCisitaliaCitroenCodaCountry Coach Дом на колесахКрановозCrosleyCrown CoachCunninghamDaewooDAFDaihatsuDaimlerDarrinDelageDelahayeDellowDeloreanDenzelDeSotoDetomasoDeutsch-BonnetDiamond ReoDina Transit BusDKWDodgeDorettiDual-Ghia DuplexEagleEagle Transit BusesEdselEl DoradoElvaEmergency OneEvobusExcaliburFacel VegaFairthorpeFederal MotorsFerrariFiatFiskerFlexible Transit BusFordFrazerFrazer NashFreightlinerFWD CorporationGenesisGenesis Transit BusesGeoGiantGilligGlasGMCGoggomobilGoliathGordon-KeebleGriffithHansaHe aleyHenry JHillmanHinoHondaHotchkissHRGHudsonHumberHyundaiIC CorporationIndiana PhoenixInfinitiInternationalISOIsuzuIvecoJaguarJeepJensenJowettKaiserKalmarKenworthKiaKurtisLaforzaLagondaLamborghiniLanchesterLanciaLand RoverLea-FrancisLea-FrancisLes Autobus MCILexusLincolnLlo ярдLotusMackMaicoMarathonMarauderMarcosMaseratiMatraMaybachMazdaMcLarenMercedes -BenzMercuryMesserschmittMetropolitanMGMiniMitsubishiMitsubishi FusoMobility VenturesMonteverdiMorettiMorganMorrisMoskvichMotor Coach IndustriesNardiNashNeoplanNew FlyerNissanNova Bus CorporationNSUOldsmobileOmegaOntario BusOpelOrion BusOscaOshkosh Motor Truck Co.
ОттаваPackardPanhardPanozP пыльникPeerlessPegasoPeterbiltPeugeotPierce Mfg Inc.PlymouthPontiacPorscheQvaleRamReliantRenaultRileyRoadmaster RailRolls-RoyceRoverSaabSabraSalenSalmsonSaturnScionSeagrave Fire ApparatusShelbySiataSimcaSingerSkodaSmartSpartan MotorsSRTStandardSterlingSterling TruckSt ewart & StevensonStudebakerStutzSubaruSunbeamSutphen Corp.SuzukiSwallowTatraTerex / Terex AdvanceTeslaThinkThomasToyopetToyotaTransportation Mfg Corp.TriumphTurnerTVRUDUnimogVan HoolVauxhallVespaVolkswagenVolvoVPGWartburgWestern RVWestern StarWhiteWhite/GMCWillysWolseleyWorkhorse Изготовленное на заказ шасси WorkhorseYugoZeligsonZundapp
Выберите модель Выберите модель3000GT3000GT SL3000GT Spyder SL3000GT Spyder VR-43000GT VR-4CordiaCordia LCordia LSDiamanteDiamante ESDiamante LSEclipseEclipse GSEclipse GS SportEclipse GSTEclipse GSXEclipse GTEclipse GTSEclipse RSEclipse S EEclipse SpyderEclipse Spyder GSEclipse Spyder GS SportEclipse Spyder GSTEclipse Spyder GTEclipse Spyder GTSEclipse Spyder SEEndeav LimitedEndeav LSEndeavor SEEndeavor XLSExpoExpo SPExpo LRVExpo LRV SportGalantGalant DEGalant ESGalant FEGalant GSGalant GSRGalant GSXGalant GTSGalant LSGalant RalliartGalant SGalant SEGalant SigmaGalant Sport EditionGalant Sport V6Galant VR-4Lancer DELancer ESLancer ES SportbackLancer EvolutionLancer Evolution Final EditionLancer Evolution GSRLancer Evolution MRLancer Evolution MR TouringLancer Evolution RSLancer E volution SELancer GTLancer GTSLancer GT SportbackLancer GTS SportbackLancer OZ RallyLancer RalliartLancer Ralliart SportbackLancer SELancer SELLLancer SportbackLancer Sportback RalliartMighty MaxMighty Max LWBMighty Max SMighty Max SPMighty Max SPXMighty Max SWBMonteroMontero LimitedMontero LSMontero RSMontero SportMontero SRMirageMirage DEMirage ESMirage GSMirage GTMirage LMirage LSMirage RFMirage RSMirage RSMirage SMirage SEMirage VLMirage VLMirage G4 ESMirage G4 SEMontero Sport ESMontero Sport LSMontero Sport XLSMontero Sport XSOutlander ESOutlander GTOutlander LimitedOutlander LSOutlander SEOOutlander SELOutlander XLSOutlander Sport ESOutlander Sport GTOutlander Sport LEOutlander Sport SEOOutlander Sport SELPrecisPrecis LSPrecis RSRaider DurocrossRaider LSRaider SERaider XLSSigmaStarionStarion ESStarion LEStarion LSTrediaTredia LTredia LSVani-MiEV ESi-MiEV SE
Выбор двигателя
Выберите двигатель 2.
6L 2555CC L4 Carb VIN: 7-G54B2.6L 2555CC L4 Carb VIN: E2.6L 2555CC L4 Carb VIN: E-G54B3.0L 2972CC V6 FI VIN: H-6G723.0L 2972CC V6 FI VIN: S-6G723 .5L 3497CC V6 FI VIN: 6G743.5L 3497CC V6 FI VIN: R-6G74
Автоматические стеклоподъемники Mitsubishi Pajero не работают, как сбросить
Ваш Mitsubishi Pajero может быть оснащен функцией автоматического включения стеклоподъемников, которая автоматически открывается и закрывается окна одним нажатием соответствующего переключателя. Если окно не закрывается полностью в автоматическом режиме, вам может потребоваться его сброс.
Mitsubishi Pajero — (Everyonephoto Studio / Shutterstock) Наиболее распространенная причина того, что автоматические стеклоподъемники в Mitsubishi Pajero не работают, — замена или отсоединение 12-вольтовой батареи. Электрические стеклоподъемники по-прежнему работают, но вам нужно вручную удерживать переключатель, чтобы полностью закрыть или открыть окна. В этом случае выполнение процедуры сброса должно восстановить автоматическую функциональность.
Процедура сброса
- Запустите свой Pajero.
- Закройте все двери и окна.
- Откройте окно, нажав и удерживая переключатель управления окном. Когда окно полностью открыто, удерживайте переключатель нажатым в течение нескольких секунд.
- Закройте окно, подняв и удерживая переключатель стеклоподъемника. Когда окно полностью закрыто, удерживайте переключатель нажатым в течение нескольких секунд.
Примечание: Повторите процедуру, если окно не закрывается автоматически одним нажатием переключателя. Если это все еще не работает, повторите процедуру, не запуская двигатель и зажигание в положении ON. Чтобы включить зажигание в автомобилях с кнопкой старт/стоп, нажмите кнопку, не нажимая на педаль тормоза.
Процедура сброса 2
Если приведенные выше инструкции по сбросу не работают для вашего Pajero, может сработать этот альтернативный метод.
- Заведи свой Паджеро.
- Закройте все окна и двери.

- Откройте окно, нажав и удерживая переключатель управления окном. Когда окно полностью открыто, удерживайте переключатель нажатым в течение нескольких секунд. Отпустите переключатель, затем снова нажмите его и удерживайте в течение нескольких секунд.
- Закройте окно, подняв и удерживая переключатель стеклоподъемника. Когда окно полностью закрыто, удерживайте переключатель нажатым в течение нескольких секунд. Отпустите переключатель, затем снова потяните его вверх и удерживайте.
- После этого функции быстрого перемещения вверх и вниз будут полностью функциональными.
Примечание: Если стекло по-прежнему не закрывается автоматически в вашем Паджеро, повторите процедуру, не запуская двигатель и не включив зажигание. Чтобы включить зажигание в автомобилях с кнопкой старт/стоп, нажмите кнопку, не нажимая на педаль тормоза.
Окно откидывается на полпути
Mitsubishi Pajero имеет функцию защиты от защемления стеклоподъемников, которая снижает риск защемления и получения травм при закрывании окон.
Если окно не может закрыться из-за сопротивления или препятствия, оно немедленно снова откроется.
Смажьте окно
Если стекло в вашем Pajero возвращается на полпути после выполнения процедуры сброса, стекло может залипнуть из-за высокого сопротивления в оконной раме. В этом случае на боковые края окна нанесите немного водостойкой силиконовой смазки. Вытрите излишки брызг тканью или бумажным полотенцем, чтобы не повредить краску или интерьер.
Рекомендуется не реже одного раза в год обрызгивать боковые стороны стекол автомобиля силиконовой смазкой для обеспечения бесперебойной работы. Это также увеличивает срок службы узла регулятора электродвигателя стеклоподъемника.Окно возвращается в исходное положение после полного закрытия
Если окно возвращается в исходное положение и снова открывается после полного закрытия одним нажатием, это означает, что функцию автоматического окна необходимо перепрограммировать. Выполните процедуру сброса, чтобы полностью восстановить функциональность.
Как управлять автоматическими стеклоподъемниками
Функция открывания и закрывания одним касанием в Mitsubishi Pajero позволяет полностью открывать или закрывать окна одним нажатием переключателя. Чтобы использовать эту функцию, не удерживайте переключатель окна вверх или вниз.
- Чтобы запустить функцию закрывания одним нажатием, кратковременно потяните переключатель стеклоподъемника вверх до второго уровня.
- Чтобы запустить функцию открывания одним касанием, кратковременно нажмите переключатель стеклоподъемника вниз до второго уровня.
- Чтобы остановить функцию открывания или закрывания одним касанием, снова потяните или нажмите переключатель этого окна.
Предупреждение о безопасности
Небрежное или непреднамеренное использование электрических стеклоподъемников вашего Pajero может привести к серьезным травмам.
- Не открывайте и не закрывайте электрические стеклоподъемники, если кто-то мешает.
- Никогда не оставляйте детей или людей, нуждающихся в помощи, без присмотра в Pajero, когда автомобиль заперт.

» или дверь не закрыта после последнего раза, когда «Зажигание
вкл.»
»
12 В
